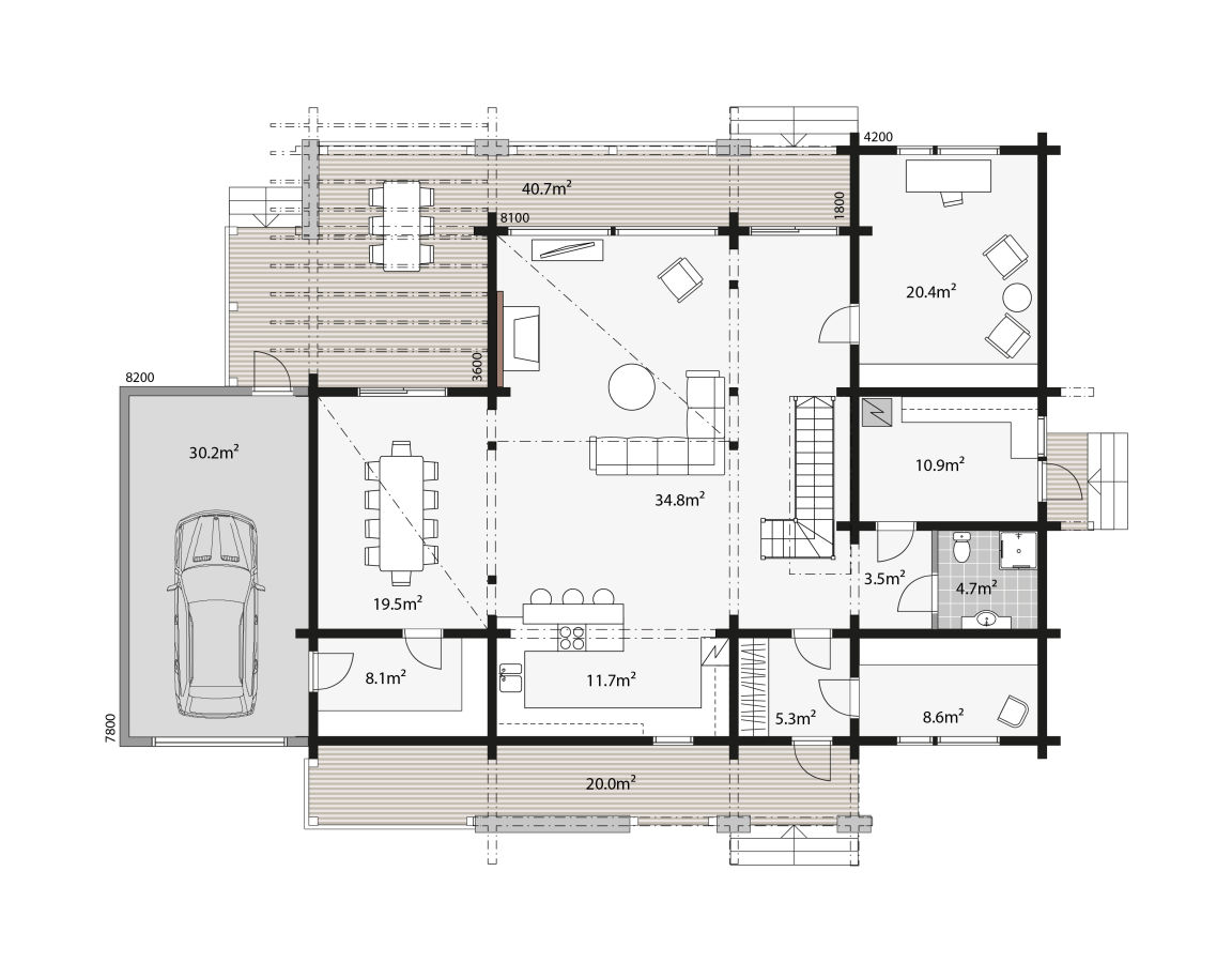
Chalet Myrica
Logs Featured - 205 x 275 mm high log profile
Living Area - 307 m2
Total Area - 406 m2 (incl decked areas & steps)
On looks alone Myrica is a timeless, traditional chalet style building offering 3-4 bedrooms, with a large kitchen, lounge and dining room, room for an office or a guest bedroom.
Upstairs a master bedroom with en-suite, two further double bedrooms, family bathroom and a large landing with walk-in store cupboard - perfect for those pesky festive decorations that are always hard to store, or, a secure cupboard for linens, towels, cleaning, etc. if a holiday let.
Design is subject to Planning Permission in the UK
Note that we present these buildings, most of which have been manufactured but you can always talk to us about modifying an existing design or, designing and manufacturing your home from scratch:
- Family Home
- Holiday Home/Let
Constructed using laminated Arctic pine logs that offer superior performance and longevity over other log buildings using softwoods for warmer climes. They have a dense grain structure as a result of the slow growth they experience and other properties allowing them to outperform other timber sources.
Hover over image for the first floor plan for Myrica



