Hill House S 127
Access to the full range of massive wood logs and corner and wall junctions.
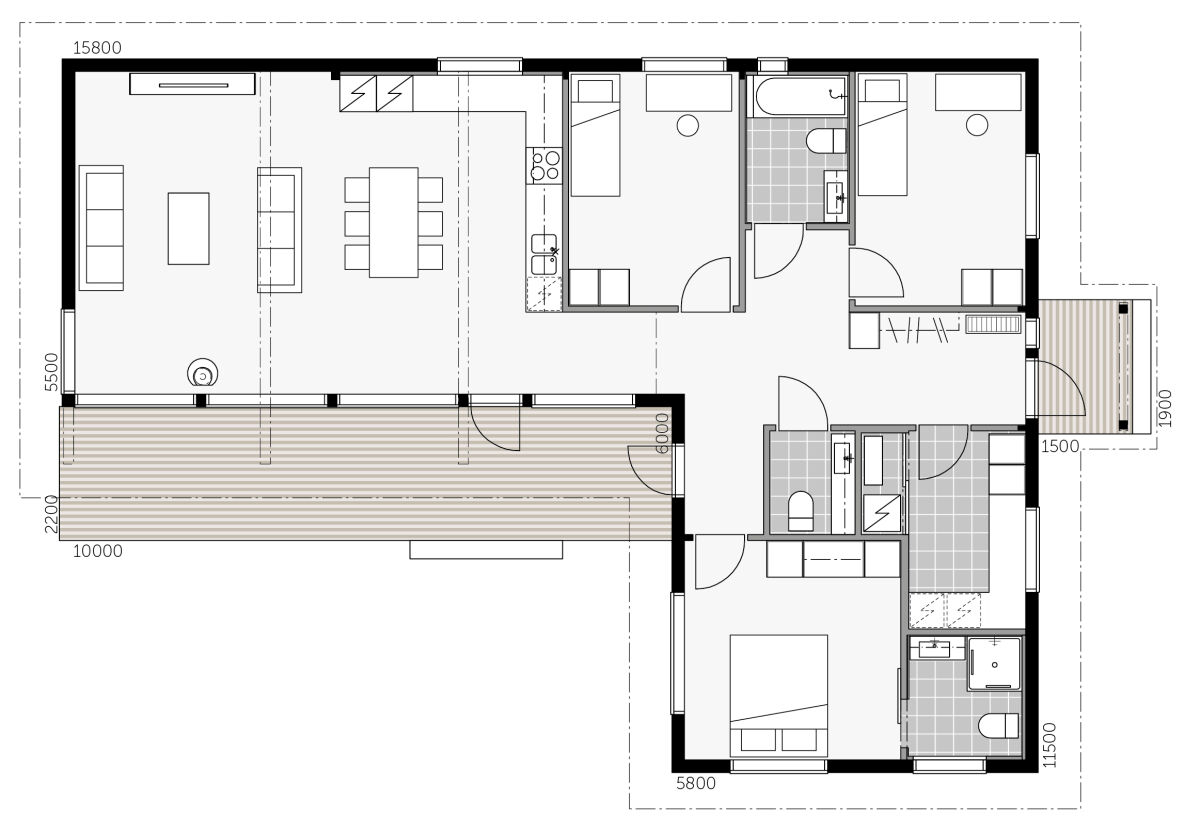
Living Area - 127.5 m2
Total Area - 116 m2 (incl decked areas & steps)
Despite the shared name, this home differs radically from its other namesakes. Single storey, it still passes muster with 3 bedrooms, one en-suite and a large outside decked area covering the views from the lounge and kitchen area.
With the extensive glazed areas this design maximises the gain from light with all of the health advantages associated with sunlight.
Design is subject to Planning Permission in the UK

Note that we present these buildings, most of which have been manufactured, you can always talk to us about modifying an existing design or, designing and manufacturing your home from scratch:
- Family Home
- Retirement Home
- Holiday Home
Constructed using laminated Arctic pine logs that offer superior performance and longevity over other log buildings using softwoods for warmer climes. They have a dense grain structure as a result of the slow growth they experience and other properties allowing them to outperform other timber sources.
Why not check out our partners website for all things Outdoor Living by following this link to their page on our website Cedar Nursery.

