Glass House 135 - New
Logs Featured - 205 x 275 mm high log profile
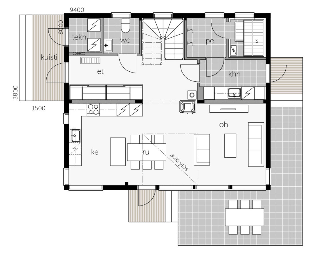
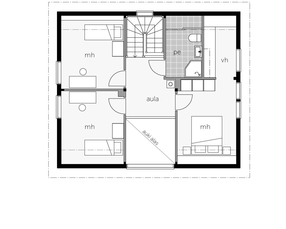
Basic Dimensions - 9400 mm x 8000 mm
Living Area - 132 m2
Total Area - m2 (incl decked areas & steps)
A new direction for the Glass House Collection, expanding to designs with 2 storeys but retaining the large areas of glass - sited South facing the glass allows light to flood in serving two purposes, one, reduced need for lighting and two, the energy entering the building is stored in the logs, releasing the stored energy overnight.
Why not check out our partners website for all things Outdoor Living by following this link to their page on our website Cedar Nursery.
Design is subject to Planning Permission in the UK
A versatile building solution that can be put to a number of uses including:
- Larger sized family home offering a 3 bed family layout whilst retaining the sauna - this feature can of course be removed
- It still caters for those looking for a retirement home, with room for family and friends to visit
- It also resides a the top end of the healthy scale: being a log home first, with all of its attributes, large windows to all aspects, a sauna with its known health benefits and room even for a jacuzzi
- As always, layouts remain flexible
Constructed using laminated Arctic pine logs that offer superior performance and longevity over other massive wood timber buildings using softwoods from warmer climes.
Hover over image for an alternative floor plan



