Log House Aurea
Access to the full range of massive wood logs and corner and wall junctions.
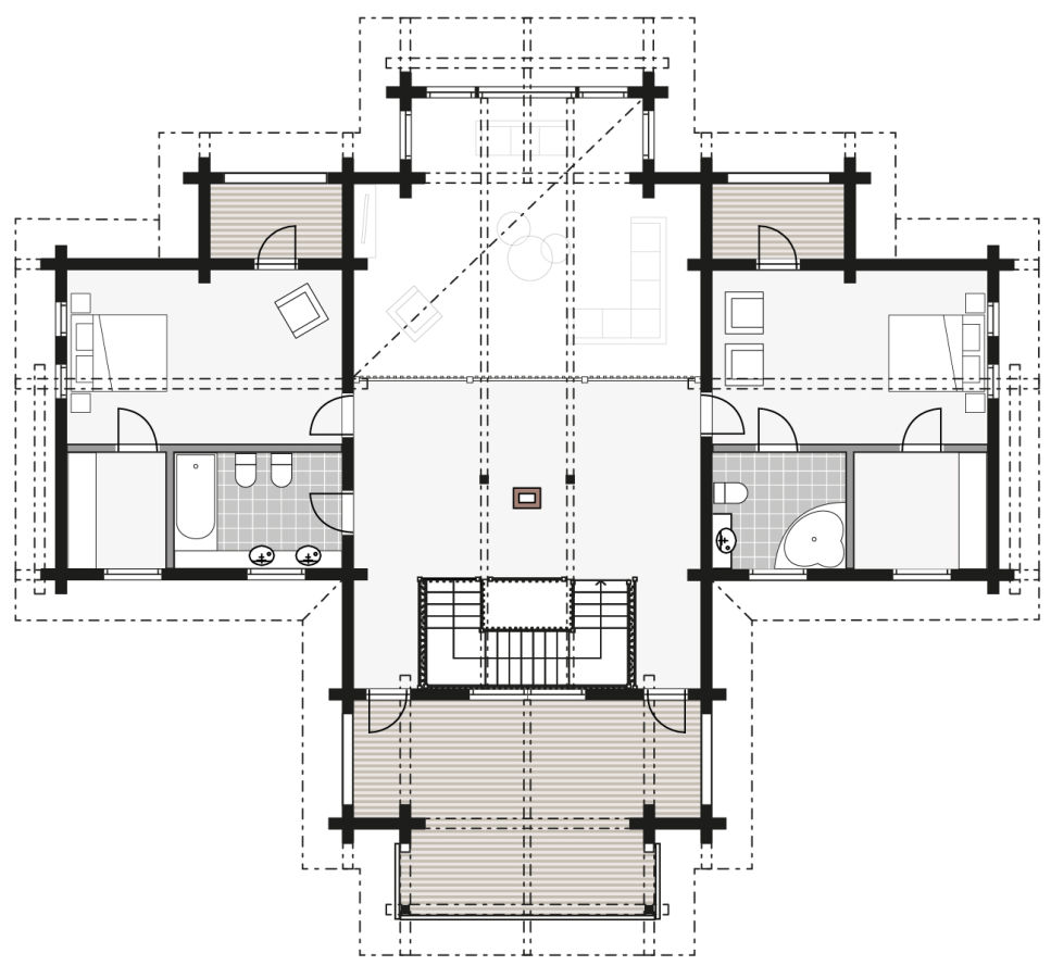
Living Area - 457 m2
Total Area - 669 m2 (incl decked areas & steps)
With the appropriate corners replacing the castlellated corners and walls, Aurea would be a stylish and elegant large family home with 3 large double bedrooms, 2 en-suite, large kitchen and dining area, double garage and a large terraced area.
Upstairs, a large galleried landing overlooking the lounge below.
Design is subject to Planning Permission in the UK

Note that as we present these buildings, most of which have been manufactured, you can always talk to us about modifying an existing design or, designing and manufacturing your home from scratch:
- Family Home
- Large Retirement Home
- Stunning Holiday Let
Constructed using laminated Arctic pine logs that offer superior performance and longevity over other log buildings using softwoods for warmer climes. They have a dense grain structure as a result of the slow growth they experience and other properties allowing them to outperform other timber sources.
Why not check out our colleagues website for all things Outdoor Living by following this link to their page on our website Cedar Nursery.
Hover over image for alternative floor plan


