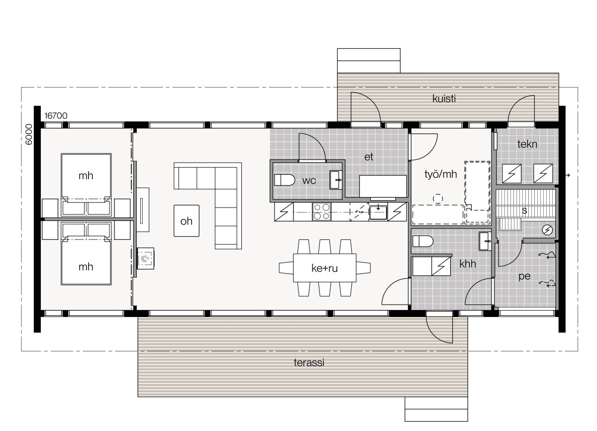
Glass House 2 - 105
Logs Featured - 205 x 275 mm high log profile
Basic Dimensions - 16700 mm x 6000 mm
Living Area - 105 m2
Total Area - 95-95.5 m2 (incl decked areas & steps)
Many designs within the Glass House range offer options on alternate layouts internally, a two bedroom home with one layout Plan A, retaining the traditional sauna delivering two double rooms, or, lose the suana an replace with a single bed, Plan B.
Design is subject to Planning Permission in the UK

A versatile building solution that can be put to a number of uses including:
- Retirement home (with optional sauna)
- Larger family home (bed 3 replacing sauna)
- Holiday let
- Office
- Restuarant
- Extra classroom - standard or ICT rich at 81 m2 or workshop
Constructed using laminated Arctic pine logs that offer superior performance and longevity over other massive wood timber buildings using softwoods from warmer climes.
Why not check out our partners website for all things Outdoor Living by following this link to their page on our website Cedar Nursery.
Hover over image for an alternative floor plan


