Beta
Access to the full range of massive wood logs and corner and wall junctions.
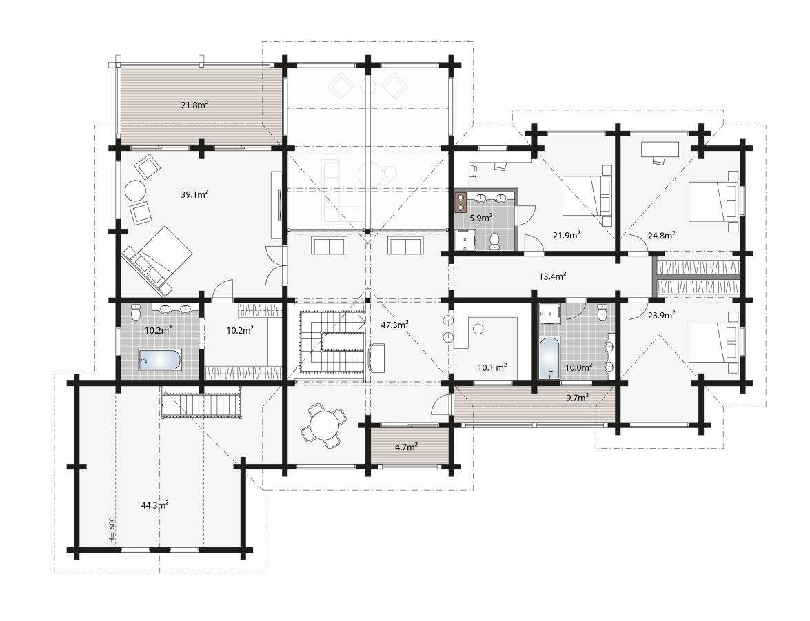
Living Area - 562 m2
Total Area - 813 m2 (incl decked areas & steps)
A generous family home, demonstrating just what can be achieved using massive logs at 562 square metres, or a little over 6,000 square feet - a large house by any measure. As shown it features castellated corners and wall joints, using Neo or Eagle corners provides a sympathetic, visually acceptable facade more in keeping with English architecture.
Design is subject to Planning Permission in the UK

Note that we present these buildings, most of which have been manufactured, you can always talk to us about modifying an existing design or, designing and manufacturing your home from scratch:
- Family Home
- Stunning Holiday Let
Constructed using laminated Arctic pine logs that offer superior performance and longevity over other log buildings using softwoods for warmer climes. They have a dense grain structure as a result of the slow growth they experience and other properties allowing them to outperform other timber sources.
Hover over image for alternative floor plan


