Hansa
Access to the full range of massive wood logs and corner and wall junctions.
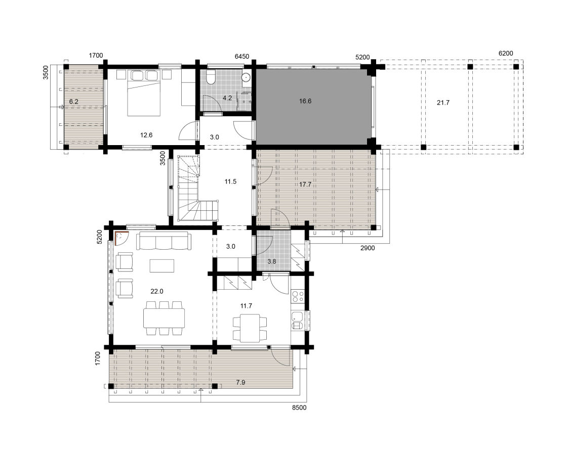
Living Area - 150 m2
Total Area - 143 m2 (incl decked areas & steps)
Considering that Hansa provides for 4 well proportioned bedrooms it still leaves room to spare for a growing family. As a holiday home its design will impress in any environment.
As shown it is using Neo corners provides a sympathetic, visually acceptable facade more in keeping with English architecture which should ease planning concerns.
Design is subject to Planning Permission in the UK

Note that we present these buildings, most of which have been manufactured, you can always talk to us about modifying an existing design or, designing and manufacturing your home from scratch:
- Family Home
- Holiday Home
Constructed using laminated Arctic pine logs that offer superior performance and longevity over other log buildings using softwoods for warmer climes. They have a dense grain structure as a result of the slow growth they experience and other properties allowing them to outperform other timber sources.
Why not check out our colleagues website for all things Outdoor Living by following this link to their page on our website Cedar Nursery.
Hover over image for first floor plan


