Glass House Classic - 100 - New
Logs Featured - 205 x 275 mm high log profile
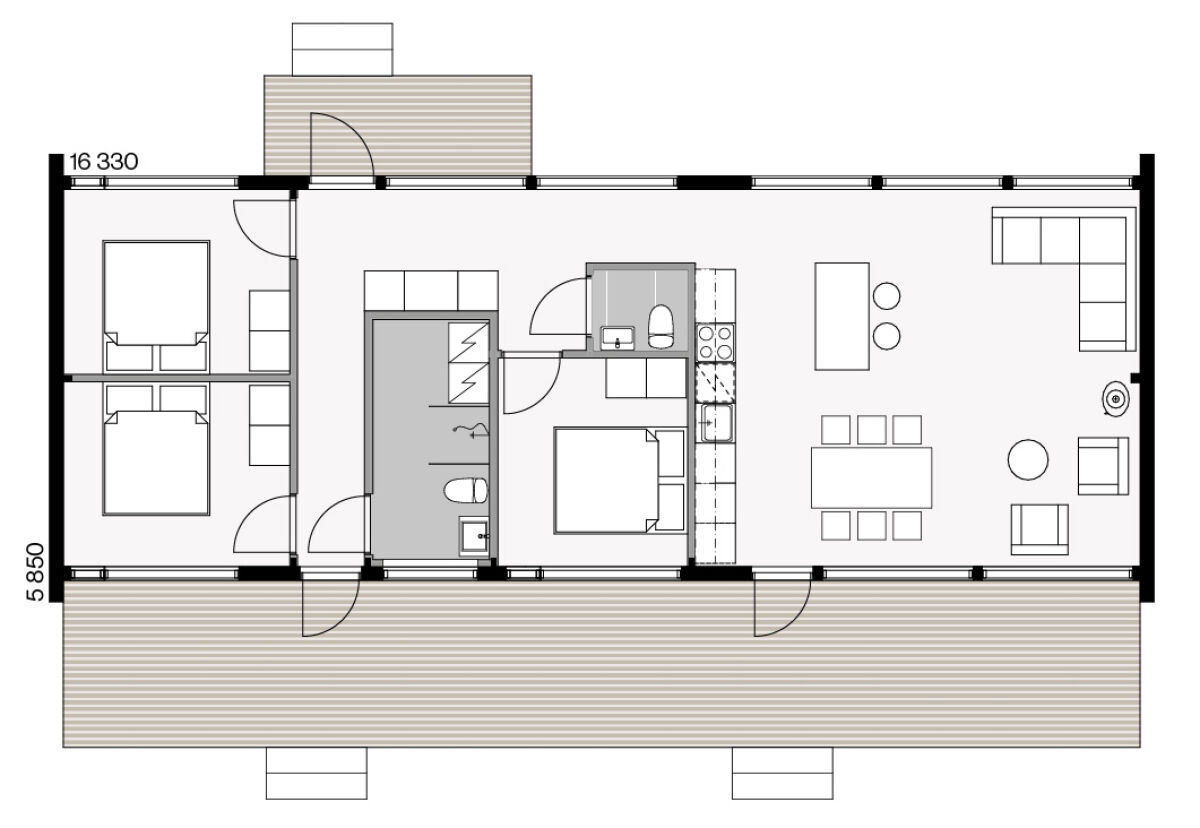
Basic Dimensions - 16330. mm x 5850 mm
Living Area - 100.4 m2
Total Area - 91 m2 (incl decked areas & steps)
It's called Classic because it has a pitched roof lending it classic styling but the visuals aside Classic 100 is a thoroughly modern version of the log cabin. A comfortable 3 bed home, flooded with light, with the option of creating an additional galleried area into the loft
Design is subject to Planning Permission in the UK

A versatile building solution that can be put to a number of uses including:
- Retirement home (with optional sauna)
- Small family home (bed 3 replacing sauna)
- Holiday let
- Office
- Restuarant
- Extra classroom - standard or ICT rich at 81 m2
Constructed using laminated Arctic pine logs that offer superior performance and longevity over other massive wood timber buildings using softwoods from warmer climes.
Why not check out our partners website for all things Outdoor Living by following this link to their page on our website Cedar Nursery.
Hover over image for an alternative floor plan


