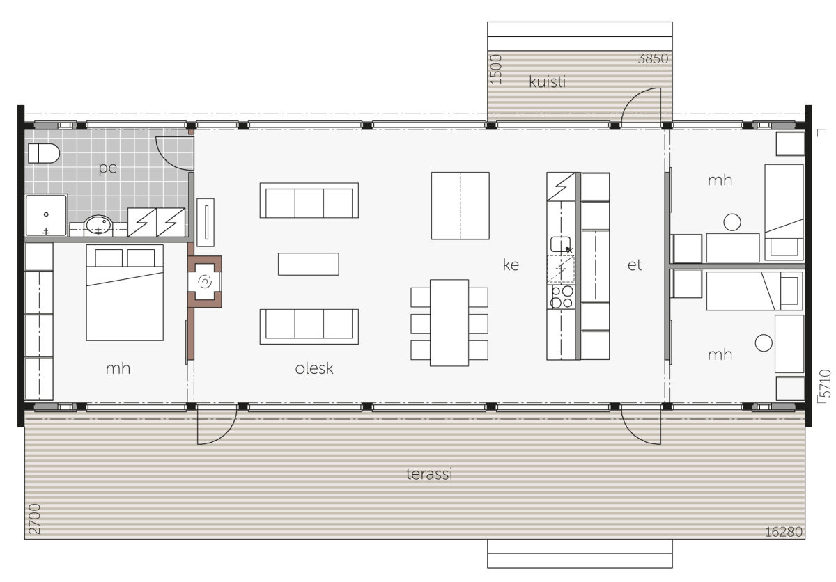
Glass House 100
Logs Featured - 205 x 275 mm high log profile
Basic Dimensions - 12650. mm x 7500 mm
Living Area - 99 m2
Total Area - m2 (incl decked areas & steps)
Modern retirement at its best, all on one level and room to play with the design to meet your desires.
Otherwise a stunning holiday let aimed at the quality end of the market where prices and margins are better. Three bedrooms so ideal for the typical family.
Design is subject to Planning Permission in the UK

A versatile building solution that can be put to a number of uses including:
- Spacious Retirement home with room for guests.
- Holiday let/home for the typical family looking for something a bit more special.
Constructed using laminated Arctic pine logs that offer superior performance and longevity over other massive wood timber buildings using softwoods from warmer climes.
Why not check out our partners website for all things Outdoor Living by following this link to their page on our website Cedar Nursery.

