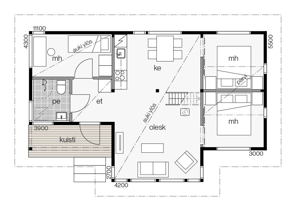
Kajo 65 - New
Access to the full range of massive wood logs and corner and wall junctions.
Living Area - 64 m2
Total Area - 79.5 m2 (incl decked areas & steps)
1.5 storeys using the loft space, Kajo 65 could be a fabulous holiday let, cost-effective and will outlast static caravans or conventional holiday lodges with only minimal maintenance.
The loft space ofers the option of an additional bedroom or games room albeit with limited headroom.
Design is subject to Planning Permission in the UK

Note that we present these buildings, most of which have been manufactured, you can always talk to us about modifying an existing design or, designing and manufacturing your building from scratch:
- Holiday Home - Kajo 65 steps up from Kajo 50 in offering two double rooms with a further single bedroom.
Constructed using laminated Arctic pine logs that offer superior performance and longevity over other log buildings using softwoods for warmer climes. They have a dense grain structure as a result of the slow growth they experience and other properties allowing them to outperform other timber sources.
Hover over image for alternative plan