Chalet Monarda
Logs Featured - 205 x 275 mm high log profile
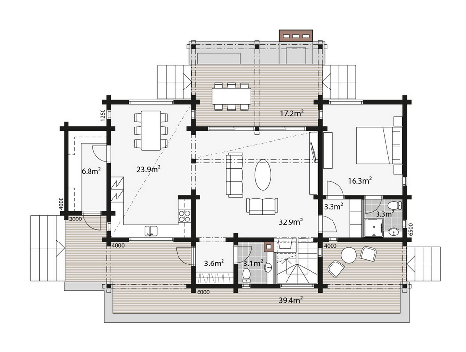
Living Area - 177 m2
Total Area - 253 m2 (incl decked areas & steps)
Tradition meets modern, the result, a chalet like Moderna and a design that can fit in anywhere. With a large kitchen/diner and lounge it offers vacationers room to spare and this with just three double bedrooms. Upstairs two double bedrooms and a large open landing area capable of performing as a "refuge" area if required.
Outside are large decked areas to the front and rear providing guests with the access to the great outdoors - weather permitting.
Design is subject to Planning Permission in the UK
Note that we present these buildings, most of which have been manufactured but you can always talk to us about modifying an existing design or, designing and manufacturing your home from scratch:
- Family Home
- Retirement Home
- Holiday Home/Let
Constructed using laminated Arctic pine logs that offer superior performance and longevity over other log buildings using softwoods for warmer climes. They have a dense grain structure as a result of the slow growth they experience and other properties allowing them to outperform other timber sources.
Why not check out our partners website for all things Outdoor Living by following this link to their page on our website Cedar Nursery.
Hover over image for the first floor plan for Monarda



