Log House Apertus
Access to the full range of massive wood logs and corner and wall junctions.
Living Area - 126-171 m2
Total Area - 150-203 m2 (incl decked areas & steps)
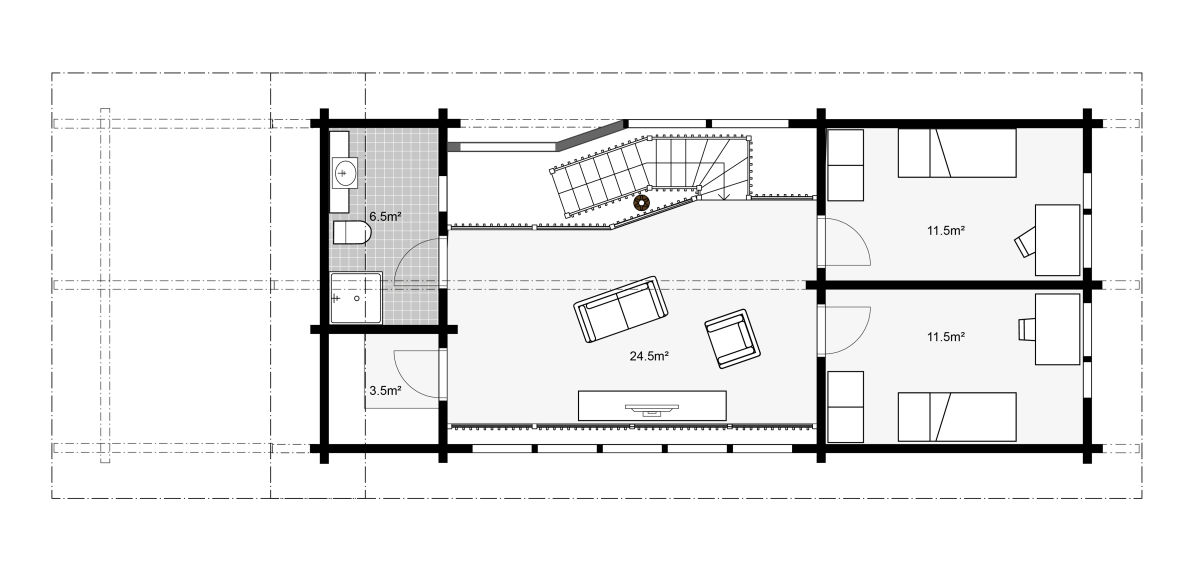
Apertus EOS 115 is one of three variations on a theme, a comfortable 3 bedroom home over two levels, with a garage and three extensive decked areas. It has the classic high pitched roof, common to Scandanavian areas but could look equally at home in the UK.
Design is subject to Planning Permission in the UK

Note that we present these buildings, most of which have been manufactured, you can always talk to us about modifying an existing design or, designing and manufacturing your home from scratch:
- Family Home
- Holiday Home
- Retirement Home
Constructed using laminated Arctic pine logs that offer superior performance and longevity over other log buildings using softwoods for warmer climes. They have a dense grain structure as a result of the slow growth they experience and other properties allowing them to outperform other timber sources.
Hover over image for the first floor plan on Apertus EOS 115


